Exklusives Investment in Bad Bramstedt - 2 MFH mit 22 Wohneinheiten zum Kauf!
Kaufangebot
OBJEKT
Objekt Nr. 1113
Kaufangebot
Mehrfamilienhaus
Kaufangebot
Mehrfamilienhaus
STANDORT
24576 Bad Bramstedt
FLÄCHEN
ca. 2.218,04 m²
Vermietbare Fläche:
ca. 2.218,04 m²
Wohnfläche:
ca. 2.218,04 m²
Gesamtfläche:
ca. 3.320,00 m²
Grundstücksgröße:
PREISE
7.480.000,00 Euro
Kaufpreis:
2,38
Courtage:
STELLPLATZ
23
Stellplätze :
Freiplatz
Stellplatzart :
VERMIETUNG
28,0 - fach
X-fache Jahresmiete :
266.705,52 Euro p.a.
Mietertrag Soll :
AUFTEILUNG
Beide Häuser umfassen ingesamt 22 Wohneinheiten:
- 11 Wohnungen pro Haus
- jeweils 3 Vollgeschosse + Staffelgeschoss
MERKMALE
22
Wohneinheiten :
3
Anzahl Etagen :
Gehoben
Ausstattung Kategorie :
Personen
Fahrstuhl/Aufzug :
Massiv
Bauweise :
KFW 55
Energiestandard :
Zentralheizung, Fussbodenheizung
Heizungsart :
Gas
Primärenergie :
2016
Baujahr :
Neuwertig
Baulicher Zustand :
nach Vereinbarung
Verfügbar ab :
ENERGIEWERTE (EnEV 2014)
Verbrauchsausweis
Energiepass :
01.09.2025
Erstellt am :
30.08.2035
Gültig bis :
A
Effizienzklasse :
2016
Baujahr laut Energiepass :
42,2 kWh/(m²*a)
Endenergieverbrauch :
Bad Bramstedt liegt im Herzen Schleswig-Holsteins im Kreis Segeberg. Die Stadt mit seinen ca. 14.000 Einwohnern zeichnet sich durch ihre zentrale Lage zwischen Hamburg, Kiel und Lübeck aus und ist hervorragend an das regionale sowie überregionale Verkehrsnetz angebunden. Die A7 sowie díe Bundesstraßen B206 / B4 gewährleisten eine schnelle Erreichbarkeit der Metropolregion Hamburg in ca. 35 min mit dem Auto.
Zudem bietet die AKN-Bahn eine gute Anbindung an den öffentlichen Nahverkehr.
Das Stadtzentrum Bad Bramstedts bietet eine gute Infrastruktur mit vielfältigen Einkaufsmöglichkeiten, Restaurants, Cafés sowie Schulen, Kindergärten und medizinischer Versorgung.
Die charmante Kurstadt besticht durch ihren hohen Freizeit- und Erholungswert. Die grüne Umgebung mit zahlreichen Wäldern, Wiesen und Flüssen bietet vielfältige Möglichkeiten für Spaziergänge, Radfahren oder andere Outdoor-Aktivitäten.
Zudem bietet die AKN-Bahn eine gute Anbindung an den öffentlichen Nahverkehr.
Das Stadtzentrum Bad Bramstedts bietet eine gute Infrastruktur mit vielfältigen Einkaufsmöglichkeiten, Restaurants, Cafés sowie Schulen, Kindergärten und medizinischer Versorgung.
Die charmante Kurstadt besticht durch ihren hohen Freizeit- und Erholungswert. Die grüne Umgebung mit zahlreichen Wäldern, Wiesen und Flüssen bietet vielfältige Möglichkeiten für Spaziergänge, Radfahren oder andere Outdoor-Aktivitäten.
Namens und im Auftrage der Eigentümer dürfen wir Ihnen diese zwei Wohnhäuser in ruhiger, aber dennoch zentraler Lage von Bad Bramstedt zum Kauf anbieten!
Die parallel gelegenen Wohnanlagen mit insgesamt 22 Wohneinheiten liegen postalisch in den benachbarten Straßen Am Wald 2 und in der Pastor-Hümpel-Str. 1 in Bad Bramstedt.
Beide Wohnanlagen wurden 2015 bzw. 2016 auf einem jeweils 1.783 m² / 1.537 m² großem Grundstück massiv erbaut und befinden sich in einem sehr guten Instandhaltungszustand.
Seit Ende 2020 werden beide Wohnanlagen durch uns, die Firma Clausen-Immobilien GmbH aus Neumünster, gerne und zuverlässig verwaltet.
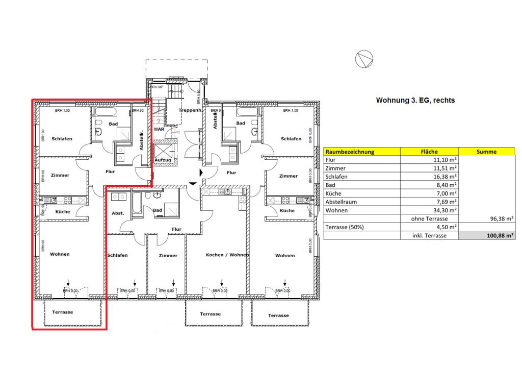
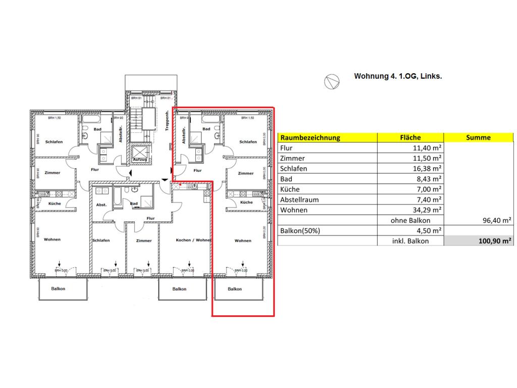
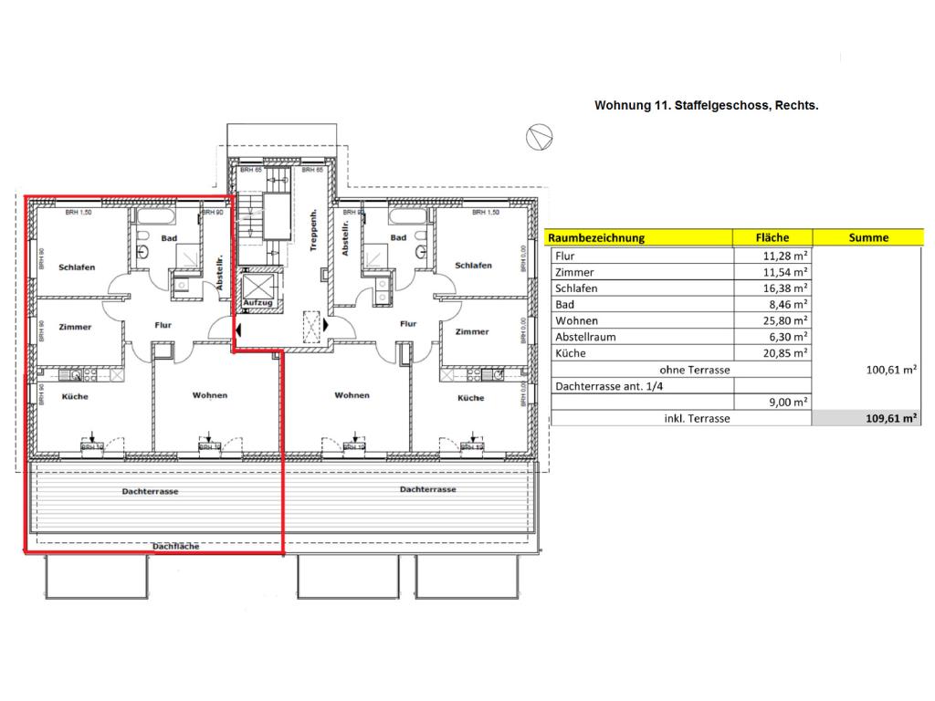
Beide Wohnanlagen bestehen aus jeweils 3 Vollgeschossen und einem Staffelgeschoss mit Dachterrasse.
Die Wohnungen zeichnen sich durch eine großzügige Raumaufteilung auf. Alle Einheiten verfügen außerdem über einen Balkon oder Terrasse, einer Fußbodenheizung sowie einer Einbauküche.
Beide Wohnanlagen teilen sich wie folgt auf:
Am Wald 2 - MFH mit 11 Wohneinheiten aus dem Baujahr 2016 mit ca. 1.109,02 m² WF
Pastor-Hümpel-Str. 1 - MFH mit 11 Wohneinheiten aus dem Baujahr 2015 mit 1.109,02 m² WF
Summe vermietbarer Fläche ca. 2.218 m²
Summe Kaltmiete / Monat EURO 22.225,46
Summe Kaltmiete / Jahr EURO 266.705,52
Beide Wohnimmobilien können einzeln oder zusammen verkauft werden.
Außerdem verfügt jede Wohneinheit über einen Außenstellplatz. Die Kosten hierfür sind zum Teil nicht in den angegeben Kaltmieten enthalten / zum Teil in den Kaltmieten enthalten.
Wir freuen uns, Sie in einem persönlichen Gespräch zu diesem tollen Invest zu beraten! Melden Sie sich gerne, um einen Besichtigungstermin mit uns abzustimmen!
Die parallel gelegenen Wohnanlagen mit insgesamt 22 Wohneinheiten liegen postalisch in den benachbarten Straßen Am Wald 2 und in der Pastor-Hümpel-Str. 1 in Bad Bramstedt.
Beide Wohnanlagen wurden 2015 bzw. 2016 auf einem jeweils 1.783 m² / 1.537 m² großem Grundstück massiv erbaut und befinden sich in einem sehr guten Instandhaltungszustand.
Seit Ende 2020 werden beide Wohnanlagen durch uns, die Firma Clausen-Immobilien GmbH aus Neumünster, gerne und zuverlässig verwaltet.
Beide Wohnanlagen bestehen aus jeweils 3 Vollgeschossen und einem Staffelgeschoss mit Dachterrasse.
Die Wohnungen zeichnen sich durch eine großzügige Raumaufteilung auf. Alle Einheiten verfügen außerdem über einen Balkon oder Terrasse, einer Fußbodenheizung sowie einer Einbauküche.
Beide Wohnanlagen teilen sich wie folgt auf:
Am Wald 2 - MFH mit 11 Wohneinheiten aus dem Baujahr 2016 mit ca. 1.109,02 m² WF
Pastor-Hümpel-Str. 1 - MFH mit 11 Wohneinheiten aus dem Baujahr 2015 mit 1.109,02 m² WF
Summe vermietbarer Fläche ca. 2.218 m²
Summe Kaltmiete / Monat EURO 22.225,46
Summe Kaltmiete / Jahr EURO 266.705,52
Beide Wohnimmobilien können einzeln oder zusammen verkauft werden.
Außerdem verfügt jede Wohneinheit über einen Außenstellplatz. Die Kosten hierfür sind zum Teil nicht in den angegeben Kaltmieten enthalten / zum Teil in den Kaltmieten enthalten.
Wir freuen uns, Sie in einem persönlichen Gespräch zu diesem tollen Invest zu beraten! Melden Sie sich gerne, um einen Besichtigungstermin mit uns abzustimmen!
- 22 Wohneinheiten
- 23 Außenstellplätze
- Einbauküchen in jeder Wohneinheit
- Terrasse / Balkone zu jeder Wohneinheit
- Aufzug in beiden Häusern
- Fußbodenheizung
- pflegeleichte Grundstücke
- 23 Außenstellplätze
- Einbauküchen in jeder Wohneinheit
- Terrasse / Balkone zu jeder Wohneinheit
- Aufzug in beiden Häusern
- Fußbodenheizung
- pflegeleichte Grundstücke
Lieferung nach Vereinbarung. Alle Angaben basieren ausschließlich auf Informationen, die uns von unseren Auftraggebern zur Verfügung gestellt wurden. Wir übernehmen keine Gewähr für die Vollständigkeit, Richtigkeit und Aktualität dieser Angaben.
DIREKT KONTAKT
Tristan Clausen
04321/43606
t.clausen@clausen-immob.de
Diese Webseite verwendet Cookies. Mehr dazu erfahren Sie in
der Datenschutzerklärung.
Wenn Sie alle Funktionen des Angebotes nutzen möchten, müssen Sie der Verwendung von Cookies zustimmen.
04321-43606
info@clausen-immob.de














